86860
Jengen / Weicht

Großzügiges 3(-4) Familienhaus mit Garten, 4 Balkonen und vielseitigem Nutzungspotenzial


984.000 €
Stellplätze
6
Zimmer
12
Badezimmer
4

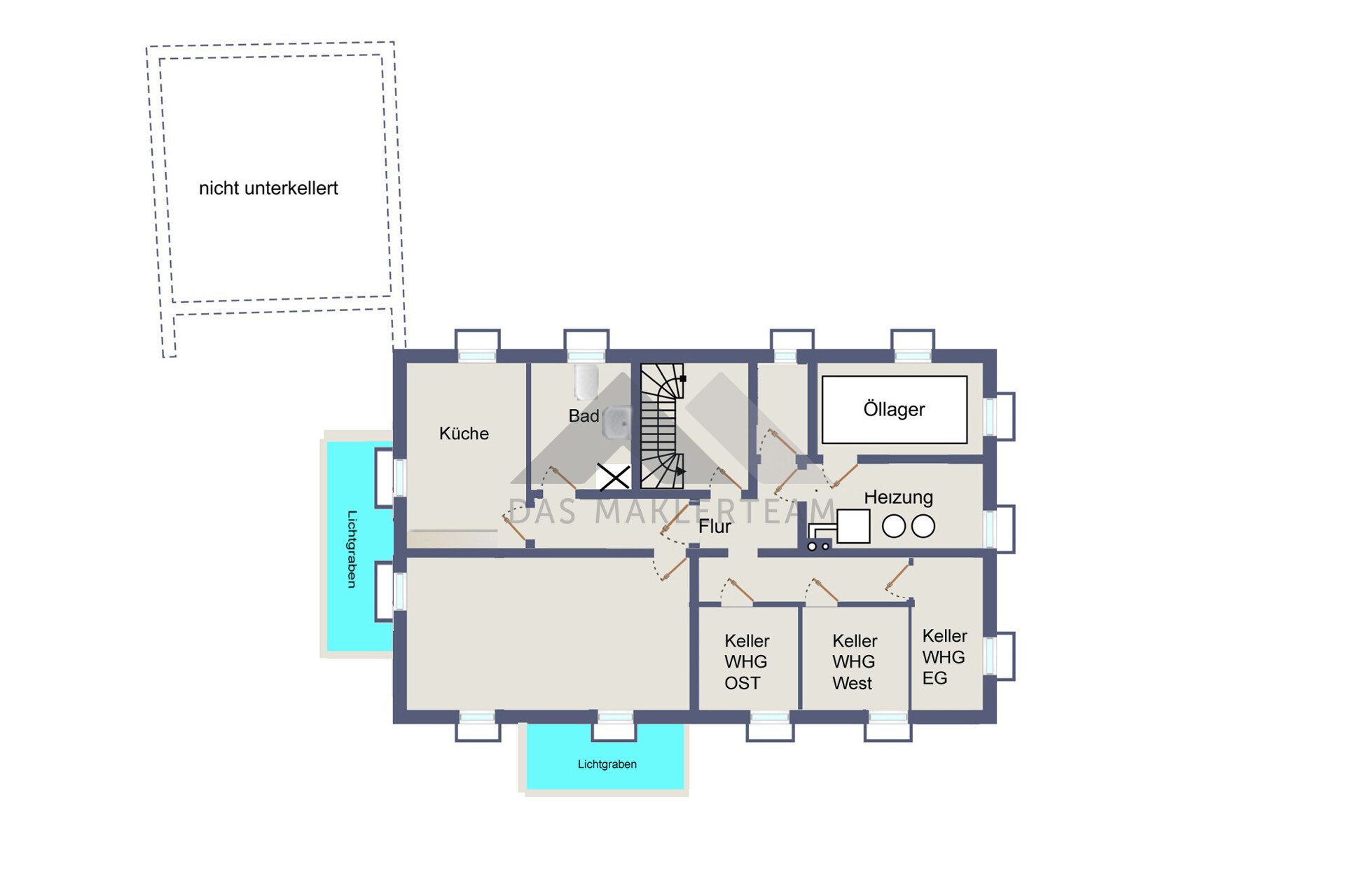
Willkommen in diesem gepflegten Mehrfamilienhaus mit drei Wohneinheiten aus dem Jahr 2002, das sowohl für Familien als auch für Investoren attraktiv ist. Auf ca. 341 m² Wohnfläche verteilen sich drei Etagen mit durchdachten Grundrissen. Das Souterrain ist für den Ausbau einer weiteren Wohnung vorbereitet. Im Erdgeschoss befindet sich eine großzügige, barrierefreie Gartenwohnung mit drei Schlafzimmern, Bad, Gäste-WC sowie einem hellen Wohnbereich mit angrenzender Wohnküche und Speis. Die Südterrasse und der große Garten laden zum Entspannen ein. Die Wohnung wird nach Absprache frei. Die beiden oberen Etagen beherbergen jeweils eine Maisonettewohnung mit Wohn- und Essbereich, Küche, Speis und Gäste-WC auf der unteren Ebene sowie drei Schlafzimmern und einem großen Bad auf der oberen Ebene. Jede Wohnung verfügt über zwei Balkone mit Süd- oder Westausrichtung. Eine der beiden steht bereits leer, die zweite ist zuverlässig vermietet. Das ca. 1.105 m² große Grundstück bietet viel Platz im Freien. Vollkeller und ein großer Dachboden sorgen für Stauraum und Flexibilität.
– Massivbauweise – Wohnung im EG ca. 120 m² – 2 Maisonettewohnungen im OG je ca. 110 m² – Souterrainwohnung zum Ausbau vorbereitet (mit 2 Lichtgräben) – Ölheizung 2002 – Solaranlage zur Brauchwasserversorgung – Isolierverglaste Kunststofffenster mit erhöhtem Wärmeschutz und Rollläden – Parkett-, Fliesen- und Teppichböden – 3 Bäder mit Dusche und Badewanne – 3 Gäste-WC´s – Bad mit Dusche und WC im Souterrain – 4 Balkone – Terrasse mit Garten im EG – Einbauküche im EG – Doppelgarage mit zwei Toren – 4 weitere Außenstellplätze *Einbaumöbel und Brennstoffvorräte sind im Regelfall nicht im Kaufpreis enthalten
Dieses Mehrfamilienhaus liegt in der idyllischen Gemeinde Jengen im OT Weicht, eingebettet in eine ruhige und einladende Nachbarschaft. Die zentrale Lage des Hauses ermöglicht eine hervorragende Erreichbarkeit von Annehmlichkeiten des täglichen Bedarfs. Einkaufsmöglichkeiten, Ärzte und Apotheken befinden sich im nahegelegenen Buchloe und Jengen. Für Pendler ist die Autobahn und der Bahnhof Buchloe mit Anschluss nach München schnell erreichbar. Familien profitieren von der Nähe zu Bildungs- und Betreuungseinrichtungen: Zwei Kindergärten sind in kurzer Entfernung erreichbar, und für ältere Kinder stehen diverse Schulen in den benachbarten Ortsteilen zur Auswahl. Diese Umgebung vereint die Vorteile eines ruhigen Wohnortes mit der Praktikabilität und den Annehmlichkeiten moderner Infrastruktur.
Bitte führen Sie Ihre Anfrage digital durch, somit erhalten Sie zeitnah einen ersten und schnelleren Überblick zu unserem Angebot. Weitere Informationen finden Sie auch unter: www.das-maklerteam.de Immobilienbewertung online: Sie fragen sich, was Ihre Immobilie heute wert ist? Auf www.ImmobewertungOnline.de können Sie bei uns selbst eine kostenlose Wohnmarktanalyse erstellen. Geben Sie die Eckdaten der Immobilie ein und erhalten Sie umgehend die Bewertung per Mail zugesandt. — SCHNELL – BEQUEM – ONLINE — Die Wohnmarktanalyse enthält den unabhängigen und tagesaktuellen iib-Immobilien-Richtwert. Grundlage ist das gesetzlich normierte Verfahren zur Wertermittlung unter Berücksichtigung der spezifischen Lage der Immobilie, aktuellen Vergleichspreisen und Ihren Angaben. Angebot im qualifizierten Makler-Alleinauftrag. Bei allen Angaben handelt es sich um Angaben des Eigentümers bzw. Dritter. Trotz regelmäßiger Prüfung von Daten, Bildern und Informationen übernehmen wir keine Haftung für die Richtigkeit der Angaben. Ebenso wenig für die Verfügbarkeit des Angebotes bei Vermietung oder Verkauf. Die Informationen in Exposés und auf unseren Webseiten ersetzen keine persönliche Beratung! Wir behalten uns das Recht vor, Änderungen oder Ergänzungen der bereitgestellten Informationen jederzeit vorzunehmen. Copyright © aller Texte und Bilder: Wüstenrot Immobilien Landsberg. Für alle Angebote gelten unsere Allgemeinen Geschäftsbedingungen.

Teilen auf

Grundrisse


Objektangaben

Objektnummer:WI-3541
Wohnfläche:340,93 m²
Grundstücksfläche:1.105,00 m²
Zimmer:12
Badezimmer:4
Balkone:4
Terrassen:1
Stellplätze:6

Ausstattung

Baujahr:2002
Kamin:1
Gäste-WC:1
Boden:Fliesen, Teppich, Parkett
Heizungsart:Zentralheizung
Befeuerung:Öl
Unterkellert:Ja

Kosten

Kaufpreis:984.000 €
Mieteinnahmen IST:9.036 €
Käuferprovision: 3,57 % inkl. MwSt.
Ausweistyp:Bedarf
Energieträger:Oel
Effizienzklasse:C
Gültig bis:25.07.2027
Endenergiebedarf:82.50 kWh/(m²*a)
Baujahr:2002
Baujahr Anlagentechnik:2002
  • A+
  • A
  • B
  • C
  • D
  • E
  • F
  • G
  • H
0255075100125150175200225250
82,50 kWh/(m²*a)
Anrede*
Vorname*
Nachname*
Straße*
Hausnummer*
PLZ*
Ort*
Telefon*
E-Mail*
Ihre Nachricht
Einverständnis*
Datenschutz*
  • Ihre Daten werden verschlüsselt übertragen, vertraulich behandelt und nicht an Dritte weitergegeben.
* Pflichtfelder

Ihr Ansprechpartner

31 - Wüstenrot-31-2
Timo Strehle
Tel.: 08191 648300